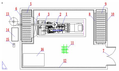
风冷式柴油发电机噪声治理平面示意图
1 柴油发电机;2 自配排烟消声器;3 冷却风扇;4 柔性接头;5 排风消声器;6 排风百叶窗;7 隔声门;8 进风百叶窗II;9 进风消音器;10 进风百叶窗I;11 吸音天花;12 吸音壁;13 烟尘净化器;14 循环水箱;15 喷淋水泵; 16 油箱。

1 柴油发电机;2 自配排烟消声器;3 冷却风扇;4 柔性接头;5 排风消声器;6 排风百叶窗;7 隔声门;8 进风百叶窗II;9 进风消音器;10 进风百叶窗I;11 吸音天花;12 吸音壁;13 烟尘净化器;14 循环风冷式柴油发电机噪声治理工艺立面图



